
犬や猫とマンションで暮らす人が増えています。今回は、マンションで暮らす猫の場合のペット防災や減災方法、猫にとって心地よいマンション空間について、かねまき・こくぼ空間工房 主宰 一級建築士の金巻とも子さんにお話を伺いました。家庭動物住環境研究家としての見地から、人と家庭動物が安全に暮らせる住空間づくりについてアドバイスをいただきました。
●ペットの行動と心理を踏まえて考える

犬や猫などの家庭動物が健康に暮らせる家をデザインする
設計事務所「かねまき・こくぼ空間工房」の主宰 金巻とも子さんにお話を伺いました。
——金巻さんは、家庭動物住環境研究家としての活動もされています。その内容を教えていただけますか?
金巻さん
家庭動物住環境研究家は、家庭動物(犬・猫・鳥など)と暮らす住環境における性能評価と設計の専門家です。人と動物の住行動と心理を踏まえて、心と体に健康で機能的な空間づくりのお手伝いをしています。
家庭で暮らす動物は、単なるペットではなく、人との生活に関わる家族。単なる快適性だけでなく、家庭動物の行動や習性、心理的幸福、日常の安全、災害時の負担軽減も考慮した、居住性能向上のための設計と研究を行っています。

完全室内飼いの猫のための住まいの設計「ねことりびんぐ」も提供。
すぐにキャットタワーを設置するのではなく、猫の視点から住まいに必要な空間を評価し、
家具の配置替えなどの小さなリノベーションを通して、
猫との絆を深める住まいを提案しているそうです。
●平常時でも災害時でも役立つ隠れ家を確保する

「猫がリラックスして過ごせる場所はどこか? 猫視点で観察することが大切」
と金巻さんは言います。
——犬と比べると猫は、災害発生時に捕まえて一緒に避難するという行動が難しいように感じていますが、いかがでしょう?
金巻さん
災害時には、犬も猫も本能的にまず安全な隠れ家に隠れる行動を取りますので同じですね。
ただ、犬はキャリーバッグやサークルで過ごすという「クレートトレーニング」をしている家庭も多く、これが使えそうですが、猫では少ないようですね。猫の場合も、本能的に逃げる隠れ家の場所に、日頃からキャリーバッグやクレートを活用しておくことをお薦めします。
動物の隠れ家は、トレーニングなどで人が教え込む場所ではなく、動物が本能的に安全だと考えて、瞬時に隠れ込む場所のことです。災害時に逃げ込む隠れ家の場所に、そのまま避難行動にも使えるキャリーバッグやクレート、専用のスペースとしてケージなどを置いてください。もし人がその場にいなくても、その隠れ家が、災害時でも物が飛び散ってきたり家具が倒れてきたりする場所でなれば、猫の安全が確保されます。

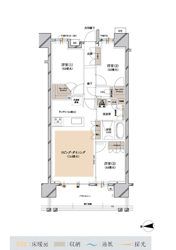
上記の間取りのような室内の場合、猫はリビング・ダイニングに隣接した洋室(3)の
クローゼットの中に入り込んで隠れることが多いそうです。
(「ブランズ川越新富町」の物件情報より間取り図を転載)
金巻さん
たとえば知らない人が苦手な猫が、来客時に逃げる場所は、人が集まるリビングに隣接した部屋のクローゼットの中など、複数の層で守られている空間です。その隠れ家から、ゆっくり来客を観察し、次にどう行動するか考えられるのです。犬も猫も、本能的に、自分の身体が接するほど狭くて囲まれた安全な場所にいたがります。日頃から、「恐怖を感じた時にどこに隠れるのか」という観察が必要です。
猫は、高い場所に逃げると考えられがちですが、実はとっさに危険を感じて逃げる場所は、まず低い場所にある穴蔵的な空間です。床を這ってこそこそ逃げていく様子の先に隠れた場所が、その猫が安全と感じる隠れ家です。隠れている時間が長くなりそうだと猫が判断すれば、高い場所にある隠れられる場所へ移ります。なので、低い場所にも、キャリーケース、高い場所に猫ちぐら(藁で編んだ猫用の寝床)を置いて、普段から快適で安全な場所として使えるようにしておきます。
●猫の理想的な隠れ家は「三層の入れ子構造」

市販の三段ケージは、猫にとって必要な生活用品が置ける空間が確保された、
隠れ家となる基本の最小空間です。
下段にトイレ、中段に食事、上段にベッドを置いて、三層の入れ子構造的機能があります。
引っ越し後の新居に慣れる時にも、三段ケージは役立ちます。
金巻さん動物の隠れ家は、何層にもなっていることが重要です。最初は低い場所に逃げ込んで身の安全を確保、次に周りの様子を見るために上からチェックするという習性があります。最初に逃げ込む場所は、周りが囲われていて安心できる感覚を味わえるキャリーケースを置いておきます。

「我が家は、三段ケージと同じ機能を持つ空間として、
壁面収納の中に猫の隠れ家を縦に移動できるように設計して組み込んでいます。
この場所は普段から猫が安心して過ごす場所であり、危険な時の隠れ家にもなります」。
金巻さん
新潟県中越地震で被災した方のお話ですが、真っ暗な夜の震災でしたが、いつも寝場所に置いていた「扉を開けたキャリケース」の中に猫が入っていたので、そのまま蓋を閉めて即座に運び出せ、人も猫も土砂災害から難を逃れたという体験談がありました。
熱海の土砂流災害でも、土砂に埋もれた家の押入れから奇跡的に救出された猫がいましたが、これも本能的に隠れ家としての押入れに逃げ込んでいたのでしょう。
マンションは地震にも水害にも強いので、災害時には自宅避難が推奨されています。またペット同行避難をしても、避難所ではペットの置き場が半屋外にあるなど、ストレスの多い場所が一般的です。だからこそ、平常時でも災害時でも安心して動物が隠れられる場所を、住空間の中に確保し、そこで避難生活を送れる様にすることが重要となってきます。
●三楽暮(さんらく)な住環境づくりを

「三楽暮(さんらく)」とは、人も楽、犬や猫も楽、家にとっても楽な状態。
「楽」に「楽しく」暮らす住環境づくりを目指すという、金巻さんが提唱する考え方です。
金巻さん
私達は、人も、家庭動物も、住まいも、互いの都合を大切にして、三つの楽がある暮らし方「三楽暮」を提案しています。飼い主である人がリラックスして暮らしやすいと、ペットも安心して健康に暮らせます。さらに、動物と暮らしていても掃除やメンテナンスがしやすく、経年劣化も魅力になる住空間であれば、住まいとしても楽です。
たとえば、猫が必要とする場所に、その猫が好む素材の爪とぎを置けば、住まいを傷つけずに済みますし、人も猫も楽になりますよね。三つのうちのどこかに負担をかけるのではなく、三つのバランスをうまく取ることで、平常時だけでなく、災害時にも機能する安全な家になります。私達はそんな家を提案していきたいと考えています。

水道の蛇口から直接水を飲むことを好む猫もいます。
新鮮な水飲み場を複数用意してあげることは、猫の健康維持につながります。
金巻さん 最後に、猫を飼う皆様にアドバイスしたい大切なことがあります。猫に水と出会う機会を増やすために、猫の通路の数カ所に水飲み場をセットしてあげましょう。そして、猫のごはんを置く食事場と水飲み場は、最低1mは離してください。猫の本能として、食事場と水飲み場を一緒にすると、そこで水を飲まなくなります。食事皿の場所から離して、水飲み場を複数置くと、水をたくさん飲むようになります。猫は腎臓病にかかりやすい動物なので、水分補給の回収と量については注意したい点です。
マンションを購入したら、人にとっても猫にとっても、心地よいインテリアにしたいものですね。ぜひ参考になさってください。そして、最新の新築マンション情報は、MAJOR7サイトでお探しください。
【MAJOR7で新築物件特集のマンション一覧を見てみよう!】
家庭動物住環境研究家。博士(工学)。一級愛玩動物飼養管理士。一級建築士事務所 かねまき・こくぼ空間工房 主宰。設計業務の他、家庭動物(犬・猫・鳥など)との暮らしをテーマに、建材メーカーや不動産の商品開発に協力。行政や獣医師会、動物愛護団体等に協力し、住宅密集地・集合住宅におけるペット飼育問題に取り組んでいる。著書に『犬・猫の気持ちで住まいの工夫』(彰国社)、『ねこと暮らす家づくり』(ワニブックス)『マンションで犬や猫と上手に暮らす』(新日本出版社)など。
→一級建築士事務所 かねまき・こくぼ空間工房
記事監修:金巻とも子
取材内容は2026年3月17日現在のもので変更になる可能性があります。