プラウド登戸
情報更新日:2025/10/23
9,658万円(1戸)~10,898万円(1戸)
間取り一覧
2間取り / 2間取り中
間取り表記一覧
| R | ルーフバルコニー |
|---|---|
| S | サービスルーム(納戸) |
| N | 納戸 |
| W WIC |
ウォークインクロゼット(クローク) |
| SIC | シューズインクロゼット(クローク) |
| TR | トランクルーム |
| DEN | 書斎(納戸) |
| WTC | ウォークスルークロゼット(クローク) |
| MC | マルチクロゼット(クローク) |
| SC | シューズクロゼット(クローク) |
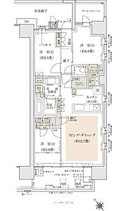
| タイプ | D |
|---|---|
| 間取り | 3LDK+N+2WIC+FC |
| 価格 | - |
| 専有面積 | 73.77m² |
| バルコニー面積 | 9.30m² |
| 所在階 | |
| その他面積 | ※専有面積にトランクルーム兼各戸宅配ボックス面積/0.38㎡含む |
| 向き | |
| 備考 | FC:ファミリークローク 504号室:販売価格9,658万円(税込) |
プラウド登戸
※完成予想図やCG合成画像は、門塀・植栽・庭・外観等、実際とは多少異なる場合があります。
※掲載の写真や動画には、一部オプション(有償)が含まれる場合があります。また、家具・調度品等は販売価格に含まれておりません。
※価格は物件の代金総額を表示しており、消費税が課税される場合は税込み価格です。
※完成後1年以上を経過した未入居物件が掲載される場合があります。ご了承ください。
