プラウド宇都宮馬場通り ( 第2期 5次 )
情報更新日:2025/10/09

間取り一覧
4間取り / 4間取り中
間取り表記一覧
R | ルーフバルコニー |
---|---|
S | サービスルーム(納戸) |
N | 納戸 |
W WIC |
ウォークインクロゼット(クローク) |
SIC | シューズインクロゼット(クローク) |
TR | トランクルーム |
DEN | 書斎(納戸) |
WTC | ウォークスルークロゼット(クローク) |
MC | マルチクロゼット(クローク) |
SC | シューズクロゼット(クローク) |
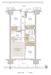
タイプ | A |
---|---|
間取り | 4LDK+N+WIC |
価格 | - |
専有面積 | 93.13m² |
バルコニー面積 | - |
所在階 | |
その他面積 | バルコニー面積/14.82㎡(2階)、15.72㎡(3階)、15.44㎡(4~14階)、15.56㎡(15階) |
向き | |
備考 | 【お詫びと訂正】 2025年9月26日までにプランページに掲載しておりましたAtypeの図面におきまして、宅配ボックスの位置が変更となっております。ここにお詫びして訂正させていただきます。 |
タイプ | B |
---|---|
間取り | 3LDK+N+WIC |
価格 | - |
専有面積 | 78.25m² |
バルコニー面積 | - |
所在階 | |
その他面積 | バルコニー面積/14.13㎡(2階)、12.80㎡(3・15階)、12.68㎡(4~14階) |
向き | |
備考 | 【お詫びと訂正】 2025年9月26日までにプランページに掲載しておりましたBtypeの図面におきまして、洋室(3)のカウンターがクローゼット内物入へ変更となっております。ここにお詫びして訂正させていただきます。 |
プラウド宇都宮馬場通り ( 第2期 5次 )
※完成予想図やCG合成画像は、門塀・植栽・庭・外観等、実際とは多少異なる場合があります。
※掲載の写真や動画には、一部オプション(有償)が含まれる場合があります。また、家具・調度品等は販売価格に含まれておりません。
※価格は物件の代金総額を表示しており、消費税が課税される場合は税込み価格です。
※完成後1年以上を経過した未入居物件が掲載される場合があります。ご了承ください。