プラウド弦巻ガーデンテラス

情報更新日:2026/03/19
未定
所在地
東京都世田谷区弦巻四丁目20番4(地番) 地図で表示
間取り
2LDK~4LDK 間取りを見る
アクセス
東急田園都市線「桜新町」駅 徒歩9分
専有面積
3509.75㎡

間取り一覧

4間取り / 4間取り中

間取り表記の説明はこちら

間取り表記一覧

R ルーフバルコニー
S サービスルーム(納戸)
N 納戸
W
WIC
ウォークインクロゼット(クローク)
SIC シューズインクロゼット(クローク)
TR トランクルーム
DEN 書斎(納戸)
WTC ウォークスルークロゼット(クローク)
MC マルチクロゼット(クローク)
SC シューズクロゼット(クローク)
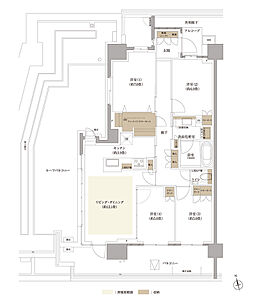
タイプ B3
間取り 3LDK+N+WIC+FIC
価格 -
専有面積 71.89
バルコニー面積 12.10
所在階
その他面積
向き
備考 FIC=フィットインクローゼット
タイプ G'
間取り 2LDK+WIC+SIC
価格 -
専有面積 55.82
バルコニー面積 11.60
所在階
その他面積
向き
備考
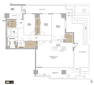
タイプ Jr
間取り 4LDK+FIC
価格 -
専有面積 91.09
バルコニー面積 17.60
所在階
その他面積 ルーフバルコニー面積/34.87㎡(5階)、33.34㎡(6階)
向き
備考
タイプ Mr【PREMIUM】
間取り 3LDK+N+SIC+3WIC
価格 -
専有面積 130.69
バルコニー面積 -
所在階
その他面積 バルコニー面積(1)/20.27㎡、バルコニー面積(2)/18.34㎡ ルーフバルコニー面積/31.19㎡
向き
備考

プラウド弦巻ガーデンテラス

※完成予想図やCG合成画像は、門塀・植栽・庭・外観等、実際とは多少異なる場合があります。
※掲載の写真や動画には、一部オプション(有償)が含まれる場合があります。また、家具・調度品等は販売価格に含まれておりません。
※価格は物件の代金総額を表示しており、消費税が課税される場合は税込み価格です。
※完成後1年以上を経過した未入居物件が掲載される場合があります。ご了承ください。

ページTOPへ