プラウドタワー神戸垂水 ( 第3期 )
情報更新日:2025/10/16

間取り一覧
5間取り / 5間取り中
間取り表記一覧
R | ルーフバルコニー |
---|---|
S | サービスルーム(納戸) |
N | 納戸 |
W WIC |
ウォークインクロゼット(クローク) |
SIC | シューズインクロゼット(クローク) |
TR | トランクルーム |
DEN | 書斎(納戸) |
WTC | ウォークスルークロゼット(クローク) |
MC | マルチクロゼット(クローク) |
SC | シューズクロゼット(クローク) |
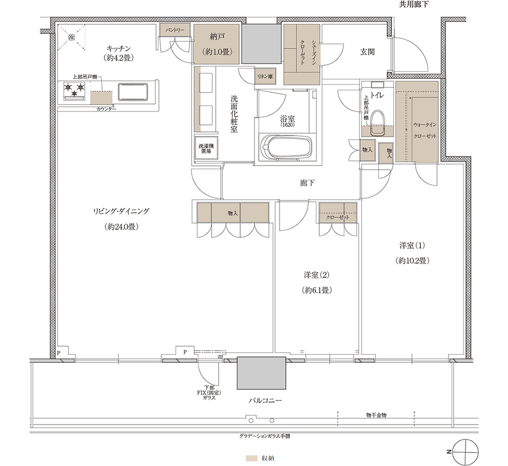
タイプ | 104WL【MENU PLAN】 |
---|---|
間取り | 2LDK+N+WIC+SIC |
価格 | - |
専有面積 | 104.40m² |
バルコニー面積 | 22.20m² |
所在階 | |
その他面積 | |
向き | |
備考 | 【PREMIUM PLAN】 |
プラウドタワー神戸垂水 ( 第3期 )
※完成予想図やCG合成画像は、門塀・植栽・庭・外観等、実際とは多少異なる場合があります。
※掲載の写真や動画には、一部オプション(有償)が含まれる場合があります。また、家具・調度品等は販売価格に含まれておりません。
※価格は物件の代金総額を表示しており、消費税が課税される場合は税込み価格です。
※完成後1年以上を経過した未入居物件が掲載される場合があります。ご了承ください。