パークホームズLaLa名古屋みなとアクルス シーズンズ
情報更新日:2025/12/13
一般販売住戸:3000万円台~5500万円台(100万円単位)(予定・本販売期以降に対応)
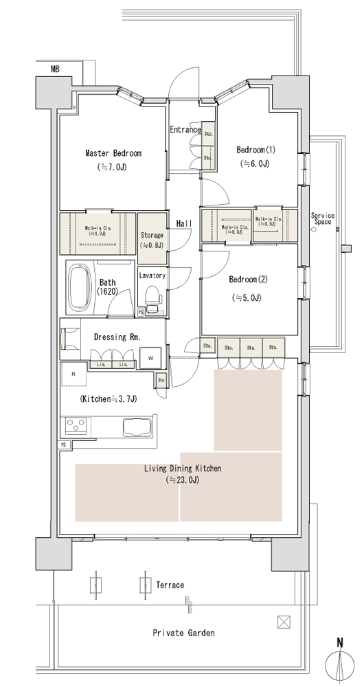
間取り一覧
7間取り / 7間取り中
間取り表記一覧
| R | ルーフバルコニー |
|---|---|
| S | サービスルーム(納戸) |
| N | 納戸 |
| W WIC |
ウォークインクロゼット(クローク) |
| SIC | シューズインクロゼット(クローク) |
| TR | トランクルーム |
| DEN | 書斎(納戸) |
| WTC | ウォークスルークロゼット(クローク) |
| MC | マルチクロゼット(クローク) |
| SC | シューズクロゼット(クローク) |
パークホームズLaLa名古屋みなとアクルス シーズンズ
※完成予想図やCG合成画像は、門塀・植栽・庭・外観等、実際とは多少異なる場合があります。
※掲載の写真や動画には、一部オプション(有償)が含まれる場合があります。また、家具・調度品等は販売価格に含まれておりません。
※価格は物件の代金総額を表示しており、消費税が課税される場合は税込み価格です。
※完成後1年以上を経過した未入居物件が掲載される場合があります。ご了承ください。
