プラウド美しが丘ヒルサイド
情報更新日:2025/10/31

間取り一覧
5間取り / 5間取り中
間取り表記一覧
| R | ルーフバルコニー |
|---|---|
| S | サービスルーム(納戸) |
| N | 納戸 |
| W WIC |
ウォークインクロゼット(クローク) |
| SIC | シューズインクロゼット(クローク) |
| TR | トランクルーム |
| DEN | 書斎(納戸) |
| WTC | ウォークスルークロゼット(クローク) |
| MC | マルチクロゼット(クローク) |
| SC | シューズクロゼット(クローク) |
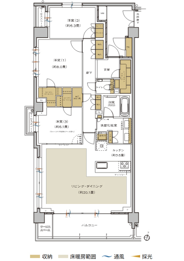
| タイプ | C |
|---|---|
| 間取り | 3LDK+N+SIC+2WIC |
| 価格 | - |
| 専有面積 | 105.72m² |
| バルコニー面積 | - |
| 所在階 | |
| その他面積 | バルコニー面積/12.20㎡(2階) ※専有面積に専有トランクルーム面積/0.86㎡含む |
| 向き | |
| 備考 | 【PREMIUM PLAN】 ■105.72m2のゆとりの住空間 約20.1畳のリビング・ダイニングをはじめ、各居室6畳以上を確保したゆとりの住空間。 ■大容量の収納スペースを確保 大型のシューズインクロークや2つのウォークインクローゼット、納戸など豊富な収納を確保。 ■開放感ある南向き角住戸 風と光を取り込むオープンセンターサッシを採用した、2面採光の開放感あるリビング・ダイニング。 |
| タイプ | G |
|---|---|
| 間取り | 3LDK+WIC |
| 価格 | - |
| 専有面積 | 73.87m² |
| バルコニー面積 | 12.40m² |
| 所在階 | |
| その他面積 | ※専有面積に専有トランクルーム面積/0.70㎡含む |
| 向き | |
| 備考 | ■フレキシブルに使える洋室(3) ウォールドアでリビングとつながる洋室(3)は開閉することでフレキシブルな空間を実現。 ■南向きのワイドリビング ワイドに広がる明るく開放的なリビング・ダイニングとなる南向き3LDK住戸。 ■豊富な収納スペース ウォークインクローゼットや廊下の物入、トランクルームなど豊富な収納をご用意。 |
| タイプ | H |
|---|---|
| 間取り | 3LDK+WIC |
| 価格 | - |
| 専有面積 | 73.87m² |
| バルコニー面積 | 12.40m² |
| 所在階 | |
| その他面積 | ※専有面積に専有トランクルーム面積/0.70㎡含む |
| 向き | |
| 備考 | ■可変性のあるリビング・ダイニング 洋室 (3) のウォールドアを開くと最大約18.7畳のワイドなリビングとして利用可能。 ■豊富な収納スペース ウォークインクローゼットや3連の物入、トランクルームなど多彩な収納をご用意。 ■プライバシーに配慮した南向き住戸 居室が廊下に面さないように設けられた吹抜などプライバシーに配慮した明るい南向き住戸。 |
| タイプ | J |
|---|---|
| 間取り | 3LDK+SIC+2WIC |
| 価格 | - |
| 専有面積 | 87.43m² |
| バルコニー面積 | - |
| 所在階 | |
| その他面積 | バルコニー面積/12.80㎡(2階) ※専有面積に専有トランクルーム面積/1.13㎡含む |
| 向き | |
| 備考 | ■大容量の収納スペースを確保 シューズインクロークや2つのウォークインクローゼット、物入など豊富な収納を確保。 ■南向き3LDK角住戸 オープンセンターサッシを採用した明るく開放的なリビング・ダイニングの南向き3LDK角住戸。 ■クランク玄関でプライバシーに配慮 共用廊下から玄関が見えづらいように配慮したクランク玄関でプライバシーに配慮しました。 |
| タイプ | Lr |
|---|---|
| 間取り | 3LDK+SIC+2WIC |
| 価格 | - |
| 専有面積 | 125.94m² |
| バルコニー面積 | 21.20m² |
| 所在階 | |
| その他面積 | サービスルーフバルコニー面積/11.89㎡、ルーフバルコニー(1)面積/10.10㎡ ルーフバルコニー(2)面積/19.05㎡ ※専有面積に専有トランクルーム面積/1.28㎡含む |
| 向き | |
| 備考 | 【PREMIUM PLAN】 ■125.94m2のゆとりの住空間 約10.0畳の主寝室や2つのウォークインクローゼットなどゆとりある住空間を実現。 ■約27.8畳の広々リビング・ダイニング 約9.8m超のワイドスパンに面した二面採光の広々としたリビング・ダイニング。 ■屋上ルーフバルコニー付住戸 吹抜の階段でつながる屋上には開放感ある19.05m2のルーフバルコニーをご用意。 |
プラウド美しが丘ヒルサイド
※完成予想図やCG合成画像は、門塀・植栽・庭・外観等、実際とは多少異なる場合があります。
※掲載の写真や動画には、一部オプション(有償)が含まれる場合があります。また、家具・調度品等は販売価格に含まれておりません。
※価格は物件の代金総額を表示しており、消費税が課税される場合は税込み価格です。
※完成後1年以上を経過した未入居物件が掲載される場合があります。ご了承ください。