プラウド等々力ガーデンコート ( 第2期 2次 )
情報更新日:2025/10/23

間取り一覧
9間取り / 9間取り中
間取り表記一覧
| R | ルーフバルコニー |
|---|---|
| S | サービスルーム(納戸) |
| N | 納戸 |
| W WIC |
ウォークインクロゼット(クローク) |
| SIC | シューズインクロゼット(クローク) |
| TR | トランクルーム |
| DEN | 書斎(納戸) |
| WTC | ウォークスルークロゼット(クローク) |
| MC | マルチクロゼット(クローク) |
| SC | シューズクロゼット(クローク) |
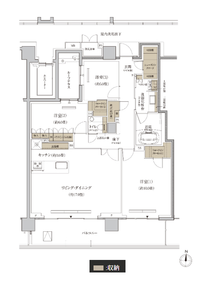
| タイプ | A |
|---|---|
| 間取り | 3LDK+FIC |
| 価格 | - |
| 専有面積 | 72.00m² |
| バルコニー面積 | 11.16m² |
| 所在階 | |
| その他面積 | |
| 向き | |
| 備考 | ※掲載の図面は簡易図面の為、詳細は正式図面をご確認ください。また現況と異なる場合は現況を優先します。 FIC:フィットインクローゼット |
| タイプ | F |
|---|---|
| 間取り | 2LDK+SIC |
| 価格 | - |
| 専有面積 | 54.51m² |
| バルコニー面積 | 11.28m² |
| 所在階 | |
| その他面積 | |
| 向き | |
| 備考 | ※掲載の図面は簡易図面の為、詳細は正式図面をご確認ください。また現況と異なる場合は現況を優先します。 |
| タイプ | H |
|---|---|
| 間取り | 3LDK+FIC |
| 価格 | - |
| 専有面積 | 70.62m² |
| バルコニー面積 | 12.40m² |
| 所在階 | |
| その他面積 | |
| 向き | |
| 備考 | ※掲載の図面は簡易図面の為、詳細は正式図面をご確認ください。また現況と異なる場合は現況を優先します。 |
| タイプ | I |
|---|---|
| 間取り | 2LDK+WIC |
| 価格 | - |
| 専有面積 | 54.59m² |
| バルコニー面積 | 10.89m² |
| 所在階 | |
| その他面積 | |
| 向き | |
| 備考 | ※掲載の図面は簡易図面の為、詳細は正式図面をご確認ください。また現況と異なる場合は現況を優先します。 |
| タイプ | J |
|---|---|
| 間取り | 3LDK+FIC |
| 価格 | - |
| 専有面積 | 70.62m² |
| バルコニー面積 | 11.59m² |
| 所在階 | |
| その他面積 | |
| 向き | |
| 備考 | ※掲載の図面は簡易図面の為、詳細は正式図面をご確認ください。 FIC:フィットインクローゼット |
| タイプ | Lm |
|---|---|
| 間取り | 3LDK+DEN+2WIC+KURASU(ロフト) |
| 価格 | - |
| 専有面積 | 106.04m² |
| バルコニー面積 | 10.17m² |
| 所在階 | |
| その他面積 | テラス面積/7.27㎡、KURASU面積(ロフト)/18.53㎡ |
| 向き | |
| 備考 | 【MAISONETTE PLAN】 ※掲載の図面は簡易図面の為、詳細は正式図面をご確認ください。また現況と異なる場合は現況を優先します。 ※掲載間取りの1階表記は建築基準法上は地下1階、2階表記は建築基準法上は1階となります。 |
| タイプ | M |
|---|---|
| 間取り | 3LDK+N+WIC+SIC |
| 価格 | - |
| 専有面積 | 75.00m² |
| バルコニー面積 | - |
| 所在階 | |
| その他面積 | バルコニー面積/7.29㎡(1)、4.32㎡(2) |
| 向き | |
| 備考 | ※掲載の図面は簡易図面の為、詳細は正式図面をご確認ください。また現況と異なる場合は現況を優先します。 |
| タイプ | O |
|---|---|
| 間取り | 3LDK+N+WIC+SIC |
| 価格 | - |
| 専有面積 | 100.73m² |
| バルコニー面積 | 19.66m² |
| 所在階 | |
| その他面積 | ルーフバルコニー面積/11.83㎡ |
| 向き | |
| 備考 | 【PREMIUM PLAN】 ※掲載の図面は簡易図面の為、詳細は正式図面をご確認ください。また現況と異なる場合は現況を優先します。 |
プラウド等々力ガーデンコート ( 第2期 2次 )
※完成予想図やCG合成画像は、門塀・植栽・庭・外観等、実際とは多少異なる場合があります。
※掲載の写真や動画には、一部オプション(有償)が含まれる場合があります。また、家具・調度品等は販売価格に含まれておりません。
※価格は物件の代金総額を表示しており、消費税が課税される場合は税込み価格です。
※完成後1年以上を経過した未入居物件が掲載される場合があります。ご了承ください。