URAWA THE TOWER ( 第3期 2次 )
情報更新日:2025/10/23

間取り一覧
9間取り / 9間取り中
間取り表記一覧
| R | ルーフバルコニー |
|---|---|
| S | サービスルーム(納戸) |
| N | 納戸 |
| W WIC |
ウォークインクロゼット(クローク) |
| SIC | シューズインクロゼット(クローク) |
| TR | トランクルーム |
| DEN | 書斎(納戸) |
| WTC | ウォークスルークロゼット(クローク) |
| MC | マルチクロゼット(クローク) |
| SC | シューズクロゼット(クローク) |
| タイプ | EP |
|---|---|
| 間取り | 2LDK+N |
| 価格 | - |
| 専有面積 | 60.29m² |
| バルコニー面積 | 12.44m² |
| 所在階 | |
| その他面積 | |
| 向き | |
| 備考 | 【01】家具レイアウトのしやすい縦型リビングプラン。 【02】収納力が高く、各居室をゆったり使用可能。 【03】使いやすさに優れた正形の居室設計。 【04】2LDK 60m2のゆったりとした広さを確保。 |
| タイプ | ER |
|---|---|
| 間取り | 1LDK+WIC |
| 価格 | - |
| 専有面積 | 42.59m² |
| バルコニー面積 | 11.40m² |
| 所在階 | |
| その他面積 | |
| 向き | |
| 備考 | 【01】美しさと機能性を兼ね備え、綺麗な間取りで家具レイアウトもしやすい1LDKプラン。 【02】ゆとりのある洗面化粧室で毎日の身支度が快適に。日用品やリネン類をすっきりと収められる豊富な収納スペースを確保。 【03】LDおよび居室に床暖房を標準設置。全居室がバルコニーに面し、光と風を感じる開放的な住空間を実現。 【04】ウォールドアを開放し、LDを拡張すれば広々空間に。 |
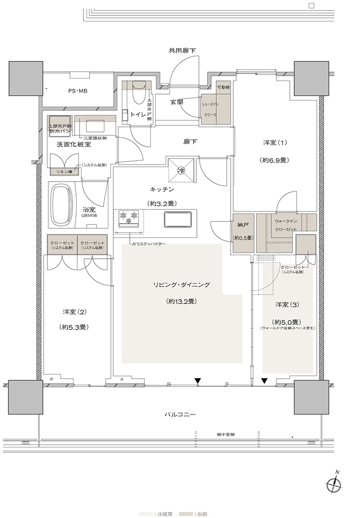
| タイプ | J |
|---|---|
| 間取り | 3LDK+N+WIC+SIC |
| 価格 | - |
| 専有面積 | 76.15m² |
| バルコニー面積 | 16.34m² |
| 所在階 | |
| その他面積 | |
| 向き | |
| 備考 | 【01】明るく開放的な南向き、約76m2の3LDKプラン。 【02】家族との会話が自然に広がる、開放的で心地よいオープンキッチン。 【03】洋室(1)はリビングから独立し、集中や休息に最適なプライベートスペースに。 【04】WIC・SIC・納戸など暮らしにゆとりをもたらす、多彩な収納設計。 |
| タイプ | L |
|---|---|
| 間取り | 3LDK+N+WIC+SIC |
| 価格 | - |
| 専有面積 | 76.38m² |
| バルコニー面積 | 16.15m² |
| 所在階 | |
| その他面積 | |
| 向き | |
| 備考 | 【01】明るく開放的な南向き、約76m2の3LDKプラン。 【02】WIC・SIC・納戸など暮らしにゆとりをもたらす、多彩な収納設計。 【03】水まわりは廊下側に集約し、清潔でプライバシーに配慮した快適な生活動線を実現。 【04】ウォールドアを開放すれば、LDが広々とした開放感溢れる空間に。ライフスタイルに合わせ自在にレイアウト可能。 |
| タイプ | O |
|---|---|
| 間取り | 2LDK+WIC+SIC |
| 価格 | - |
| 専有面積 | 57.32m² |
| バルコニー面積 | 15.58m² |
| 所在階 | |
| その他面積 | |
| 向き | |
| 備考 | 【01】全部屋バルコニーに面し、採光・通風に優れた2LDKプラン。 【02】ゆとりある4.3畳の広々キッチンは、快適な家事時間をサポート。 【03】バルコニー面は開口部が広く、開放感を享受。 【04】洋室(2)とリビング・ダイニングをつなげて、広々1LDKに。 |
| タイプ | WB |
|---|---|
| 間取り | 3LDK+SIC+2WIC |
| 価格 | - |
| 専有面積 | 70.96m² |
| バルコニー面積 | 13.96m² |
| 所在階 | |
| その他面積 | |
| 向き | |
| 備考 | 【01】各居室5畳以上を確保する、3LDK約70m2プラン。 【02】外で使うものもしまっておける大容量SIC。 【03】パントリー代わりに使用できるキッチン横のWIC。 【04】快適な入浴タイムを叶える1418サイズの浴室。 |
| タイプ | WE |
|---|---|
| 間取り | 3LDK+SIC+2WIC |
| 価格 | - |
| 専有面積 | 71.31m² |
| バルコニー面積 | 14.06m² |
| 所在階 | |
| その他面積 | |
| 向き | |
| 備考 | 【01】高い収納力を誇る3LDK約71m2プラン。 【02】帰宅後すぐに水回りに行けるから、いつでも清潔。 【03】洋室(3)とリビング・ダイニングをつなげて広々2LDKに。 【04】バルコニーに面している居室が多く明るく開放的。 |
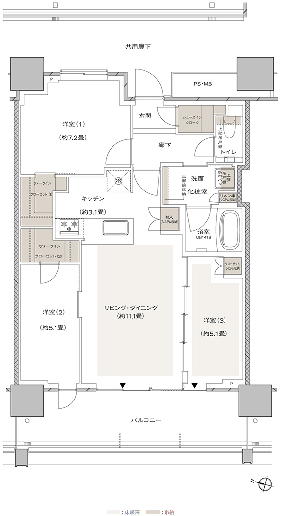
| タイプ | WG |
|---|---|
| 間取り | 3LDK+N+SIC |
| 価格 | - |
| 専有面積 | 76.23m² |
| バルコニー面積 | 15.01m² |
| 所在階 | |
| その他面積 | |
| 向き | |
| 備考 | 【01】3LDK約76m2の西向きプラン。 【02】リビング・ダイニングに向けクランクする高いプライバシー性。 【03】約3.6畳のキッチン、約15畳のリビング・ダイニングなどゆとり空間。 【04】洋室(2)とリビング・ダイニング、キッチンをつなげて20畳超の大空間に。 |
URAWA THE TOWER ( 第3期 2次 )
※完成予想図やCG合成画像は、門塀・植栽・庭・外観等、実際とは多少異なる場合があります。
※掲載の写真や動画には、一部オプション(有償)が含まれる場合があります。また、家具・調度品等は販売価格に含まれておりません。
※価格は物件の代金総額を表示しており、消費税が課税される場合は税込み価格です。
※完成後1年以上を経過した未入居物件が掲載される場合があります。ご了承ください。