間取り一覧
5間取り / 5間取り中
間取り表記一覧
| R | ルーフバルコニー |
|---|---|
| S | サービスルーム(納戸) |
| N | 納戸 |
| W WIC |
ウォークインクロゼット(クローク) |
| SIC | シューズインクロゼット(クローク) |
| TR | トランクルーム |
| DEN | 書斎(納戸) |
| WTC | ウォークスルークロゼット(クローク) |
| MC | マルチクロゼット(クローク) |
| SC | シューズクロゼット(クローク) |
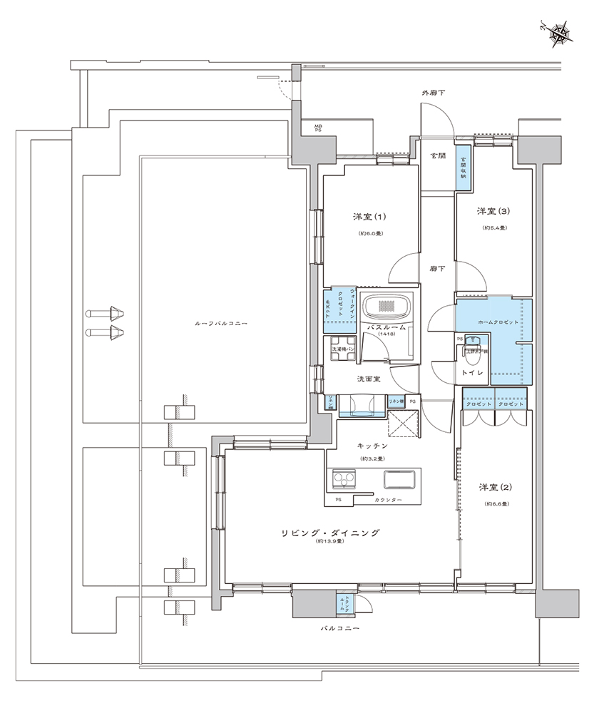
| タイプ | B |
|---|---|
| 間取り | 3LDK+2WIC |
| 価格 | - |
| 専有面積 | 70.55m² |
| バルコニー面積 | 11.45m² |
| 所在階 | |
| その他面積 | ※専有面積にトランクルーム面積/0.47㎡含む |
| 向き | |
| 備考 | ■ 洋室(1)、洋室(3)には奥行きのある大型ウォークインクロゼットを。 ■ 使い勝手のよいカウンターキッチン。 ■ 約11.8畳のリビング・ダイニングは、明るく開放的な横長タイプ。 ■ 専用トランクルーム付き。 |
| タイプ | D |
|---|---|
| 間取り | 3LDK+WIC |
| 価格 | - |
| 専有面積 | 68.53m² |
| バルコニー面積 | 11.01m² |
| 所在階 | |
| その他面積 | ※専有面積にはトランクルーム面積/0.39㎡を含む。 |
| 向き | |
| 備考 | ■洋室(1)には奥行きのある大型ウォークインクロゼットを。 ■使い勝手のよいカウンターキッチン。 ■洋室(3)の引き戸を開放すれば約16.6畳の広々空間に。 ■専用トランクルーム付き。 |
| タイプ | E |
|---|---|
| 間取り | 3LDK+WIC+SIC |
| 価格 | - |
| 専有面積 | 67.27m² |
| バルコニー面積 | 10.98m² |
| 所在階 | |
| その他面積 | ※専有面積にはトランクルーム面積/0.41㎡を含む。 |
| 向き | |
| 備考 | ■ 玄関には収納豊富なシューズインクロークを採用。 ■ 洋室(1)には奥行きのある大型ウォークインクロゼットを。 ■ 洋室(2)の引き戸を開放すれば約16.0畳の広々空間に。 ■ 専用トランクルーム付き。 |
| タイプ | G |
|---|---|
| 間取り | 1LDK+S+WIC |
| 価格 | - |
| 専有面積 | 57.97m² |
| バルコニー面積 | 10.00m² |
| 所在階 | |
| その他面積 | ※専有面積にトランクルーム面積/0.47㎡含む |
| 向き | |
| 備考 | ■洋室には奥行きのある大型ウォークインクロゼットを。 ■使い勝手のよい約6.0畳のサービスルーム。 ■洋室の引き戸を開放すれば約14.3畳の広々空間に。 ■専用トランクルーム付き。 |
ライオンズ茨木総持寺ステーショングラン
※完成予想図やCG合成画像は、門塀・植栽・庭・外観等、実際とは多少異なる場合があります。
※掲載の写真や動画には、一部オプション(有償)が含まれる場合があります。また、家具・調度品等は販売価格に含まれておりません。
※価格は物件の代金総額を表示しており、消費税が課税される場合は税込み価格です。
※完成後1年以上を経過した未入居物件が掲載される場合があります。ご了承ください。
