プラウドシティ国立 ( 第2期 )
情報更新日:2025/10/09

間取り一覧
13間取り / 13間取り中
間取り表記一覧
R | ルーフバルコニー |
---|---|
S | サービスルーム(納戸) |
N | 納戸 |
W WIC |
ウォークインクロゼット(クローク) |
SIC | シューズインクロゼット(クローク) |
TR | トランクルーム |
DEN | 書斎(納戸) |
WTC | ウォークスルークロゼット(クローク) |
MC | マルチクロゼット(クローク) |
SC | シューズクロゼット(クローク) |
タイプ | 【先着順】A-05g(104) |
---|---|
間取り | 3LDK+N+WIC+FIC |
価格 | 7698万円 |
専有面積 | 76.03m² |
バルコニー面積 | - |
所在階 | |
その他面積 | テラス面積/12.60㎡、専用テラス面積/28.86㎡ |
向き | |
備考 | ■約40m2のテラス付プラン(テラス面積12.60m2+専用テラス面積28.86m2) ■フィットインクローゼットやウォークインクローゼット・納戸など収納豊富な3LDK FIC:フィットインクローゼット |
タイプ | 【先着順】A-11(211) |
---|---|
間取り | 4LDK+N+SIC+FIC |
価格 | 8698万円 |
専有面積 | 85.13m² |
バルコニー面積 | 17.40m² |
所在階 | |
その他面積 | |
向き | |
備考 | ■三面開口の開放感あふれる南東角住戸・4LDK。 ■ファミリークロークや納戸など随所に大型収納を配置。 FIC:フィットインクローゼット |
タイプ | 【先着順】D-01(813) |
---|---|
間取り | 4LDK+N+SIC+FIC |
価格 | 9598万円 |
専有面積 | 85.13m² |
バルコニー面積 | 17.40m² |
所在階 | |
その他面積 | |
向き | |
備考 | FIC:フィットインクローゼット |
タイプ | 【先着順】D-12(823) |
---|---|
間取り | 3LDK+FIC |
価格 | 7748万円 |
専有面積 | 72.23m² |
バルコニー面積 | 12.30m² |
所在階 | |
その他面積 | |
向き | |
備考 | FIC:フィットインクローゼット |
タイプ | 【先着順】D-14(534) |
---|---|
間取り | 3LDK+FIC |
価格 | 7298万円 |
専有面積 | 72.23m² |
バルコニー面積 | - |
所在階 | |
その他面積 | バルコニー面積/11.40㎡ (2~5階)、11.50㎡ (6~8階) |
向き | |
備考 | ■ウォールドアを開放すれば、リビングと一体感のある南面2居室のゆとりを満喫。 ■廊下からも出入りできるフィットインクローゼット。 FIC:フィットインクローゼット |
タイプ | 【第2期】A-06 |
---|---|
間取り | 3LDK+N+FIC |
価格 | - |
専有面積 | 68.08m² |
バルコニー面積 | 12.00m² |
所在階 | |
その他面積 | |
向き | |
備考 | ■南面2居室配置。ウォールドア開放で2部屋一体利用可能。 ■ウォークインクローゼットや納戸など、ゆとりの収納空間をご用意。 FIC:フィットインクローゼット |
タイプ | 【第2期】E-01 |
---|---|
間取り | 3LDK+FIC |
価格 | - |
専有面積 | 72.23m² |
バルコニー面積 | - |
所在階 | |
その他面積 | バルコニー面積/11.80㎡ (2~4階)、11.90㎡ (6~8階) |
向き | |
備考 | ■ウォールドアを開放すれば、一体利用できる南面2居室配置。 ■廊下からも出入りできる大型フィットインクローゼット。 FIC:フィットインクローゼット |
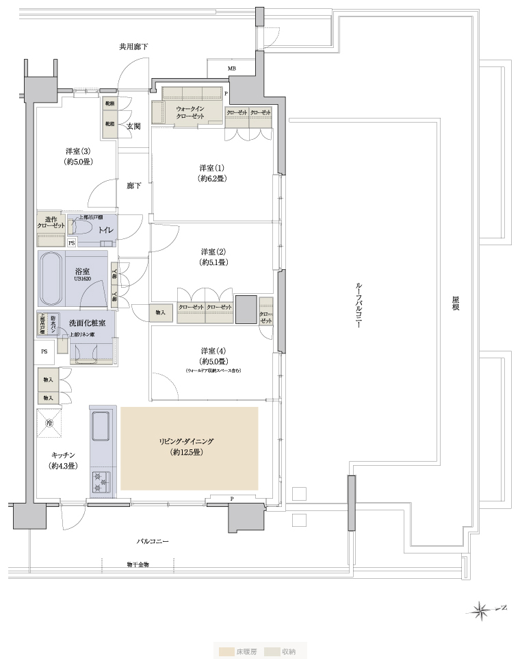
タイプ | 【第2期】E-11r |
---|---|
間取り | 4LDK+WIC |
価格 | - |
専有面積 | 85.85m² |
バルコニー面積 | 18.36m² |
所在階 | |
その他面積 | ルーフバルコニー面積/46.50㎡ |
向き | |
備考 | ■ひとつ上のゆとりを満喫する、4LDK・3面開口角住戸。 ■キッチン出入口も備えた開放的なプラン。暮らす楽しみが一層広がるルーフバルコニー付き。 |
タイプ | 【第2期】F-08 |
---|---|
間取り | 2LDK+WIC+SIC |
価格 | - |
専有面積 | 56.85m² |
バルコニー面積 | - |
所在階 | |
その他面積 | バルコニー面積/11.50㎡ (3・5階)、11.60㎡ (6~8階) |
向き | |
備考 | ■南面2居室配置。ウォールドア開放で2部屋一体利用可能。 ■シューズインクロークやウォークインクローゼットなど収納充実。 |
タイプ | 【第2期】F-09 |
---|---|
間取り | 2LDK+SIC |
価格 | - |
専有面積 | 48.87m² |
バルコニー面積 | 10.00m² |
所在階 | |
その他面積 | |
向き | |
備考 | ■ウォールドアを開放すれば、一体利用できる南面2居室配置。 ■廊下が短く、空間を有効活用できる南向きプラン。 |
タイプ | 【第2期】F-13 |
---|---|
間取り | 3LDK+FIC |
価格 | - |
専有面積 | 70.14m² |
バルコニー面積 | - |
所在階 | |
その他面積 | バルコニー面積/12.10㎡ (2~4階)、12.20㎡ (6~8階) |
向き | |
備考 | ■廊下からも出入りでき、多目的に利用できる大容量のフィットインクローゼット。 ■ウォールドアを開放すれば、2部屋続きの開放感溢れる、ゆとりの住空間に。 FIC:フィットインクローゼット |
プラウドシティ国立 ( 第2期 )
※完成予想図やCG合成画像は、門塀・植栽・庭・外観等、実際とは多少異なる場合があります。
※掲載の写真や動画には、一部オプション(有償)が含まれる場合があります。また、家具・調度品等は販売価格に含まれておりません。
※価格は物件の代金総額を表示しており、消費税が課税される場合は税込み価格です。
※完成後1年以上を経過した未入居物件が掲載される場合があります。ご了承ください。