間取り一覧
14間取り / 14間取り中
間取り表記一覧
| R | ルーフバルコニー |
|---|---|
| S | サービスルーム(納戸) |
| N | 納戸 |
| W WIC |
ウォークインクロゼット(クローク) |
| SIC | シューズインクロゼット(クローク) |
| TR | トランクルーム |
| DEN | 書斎(納戸) |
| WTC | ウォークスルークロゼット(クローク) |
| MC | マルチクロゼット(クローク) |
| SC | シューズクロゼット(クローク) |
| タイプ | E-35A2 |
|---|---|
| 間取り | 1LDK |
| 価格 | - |
| 専有面積 | 37.27m² |
| バルコニー面積 | 7.36m² |
| 所在階 | |
| その他面積 | |
| 向き | |
| 備考 | バルコニーに面した開放的なリビング・ダイニングと洋室のあるプラン。 ●明るい洋室はリビング・ダイニングとの一体利用も可能。 ●廊下を極力短く配し、居室有効率を高めたレイアウト。 ●キッチンは開放感のあるカウンター付きを採用。 |
| タイプ | E-55F |
|---|---|
| 間取り | 2LDK+WIC+SIC |
| 価格 | - |
| 専有面積 | 57.46m² |
| バルコニー面積 | 6.42m² |
| 所在階 | |
| その他面積 | |
| 向き | |
| 備考 | ●開口部に全居室を配した明るく開放感に溢れたレイアウト。 ●ライフスタイルに応じてリビング・ダイニングと一体利用できる洋室(2)。 ●洋室(1)に収納力豊富なウォークインクロゼットをご用意。 ●お料理をしながらご家族との会話も弾む対面カウンターキッチン。 |
| タイプ | E-55G |
|---|---|
| 間取り | 2LDK+WIC |
| 価格 | - |
| 専有面積 | 55.10m² |
| バルコニー面積 | 3.78m² |
| 所在階 | |
| その他面積 | サービスバルコニー面積/2.84㎡ |
| 向き | |
| 備考 | リビング・ダイニングが生活動線の中心となるレイアウト、居室有効率の高いプラン。 ●開放的なリビング・ダイニングは洋室(2)と一体で利用も可能。 ●洋室(1)に収納力豊富なウォークインクロゼットをご用意。 ●お料理をしながらご家族との会話も弾む対面カウンターキッチン。 |
| タイプ | E-55I |
|---|---|
| 間取り | 2LDK+N+WIC+SIC |
| 価格 | - |
| 専有面積 | 57.31m² |
| バルコニー面積 | 3.86m² |
| 所在階 | |
| その他面積 | サービスバルコニー面積/2.16㎡ |
| 向き | |
| 備考 | ●リビング・ダイニングが生活動線の中心となるレイアウト、居室有効率の高いプラン。 ●開放的なリビング・ダイニングは洋室(2)と一体で利用も可能。 ●納戸やウォークインクロゼット、シューズインクロゼットなど豊富な収納をご用意。 ●お料理をしながらご家族との会話も弾む対面カウンターキッチン。 |
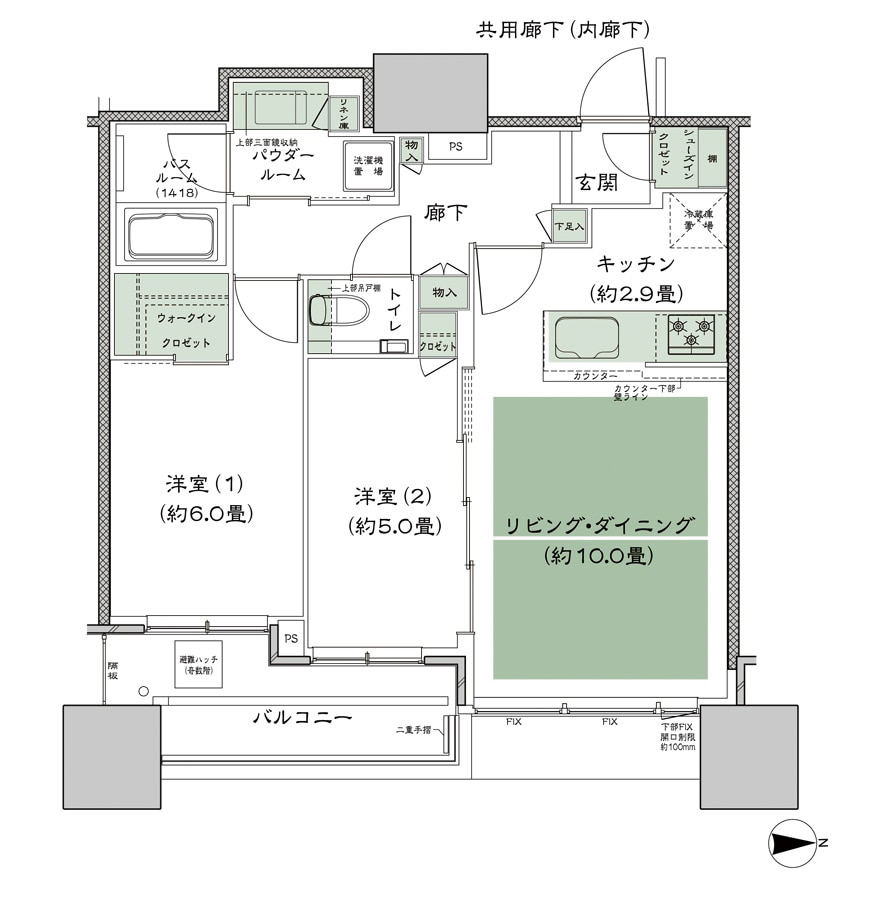
| タイプ | E-60B |
|---|---|
| 間取り | 2LDK+WIC+SIC |
| 価格 | - |
| 専有面積 | 60.49m² |
| バルコニー面積 | 7.92m² |
| 所在階 | |
| その他面積 | |
| 向き | |
| 備考 | ●開口部に全居室を配した明るく開放感に溢れたレイアウト。 ●ライフスタイルに応じてリビング・ダイニングと一体利用できる洋室(2)。 ●洋室(1)に収納力豊富なウォークインクロゼットをご用意。 ●キッチンは落ち着いてお料理に専念できる独立型。 |
| タイプ | N-70D |
|---|---|
| 間取り | 3LDK+N+WIC |
| 価格 | - |
| 専有面積 | 70.63m² |
| バルコニー面積 | 9.39m² |
| 所在階 | |
| その他面積 | |
| 向き | |
| 備考 | 開口部に全居室を配した開放的で通風に優れたレイアウト。 ●ライフスタイルに応じてリビング・ダイニングと一体利用できる洋室(3)。 ●ウォークインクロゼットや家族で使える納戸、キッチンの物入など、使い勝手のよい収納スペース。 ●お料理をしながらご家族との会話も弾む対面カウンターキッチン。 |
| タイプ | NE-65A2 |
|---|---|
| 間取り | 3LDK+WIC |
| 価格 | - |
| 専有面積 | 66.24m² |
| バルコニー面積 | 8.27m² |
| 所在階 | |
| その他面積 | |
| 向き | |
| 備考 | ●コーナーサッシュをリビング・ダイニングに設けた明るく開放的な角住戸プラン。 ●専用バルコニーを配した洋室(1)は、独立性の高いレイアウト。 ●収納力のあるウォークインクロゼットや下足入、リネン庫など随所に収納をご用意。 ●お料理をしながらご家族との会話も弾む対面カウンターキッチン。 |
| タイプ | NE-80A |
|---|---|
| 間取り | 3LDK+N+WIC |
| 価格 | - |
| 専有面積 | 80.38m² |
| バルコニー面積 | 11.29m² |
| 所在階 | |
| その他面積 | |
| 向き | |
| 備考 | コーナーサッシュをリビング・ダイニングに設けた明るく開放的な角住戸プラン。 ●専用バルコニーを配した洋室(1)は、独立性の高いレイアウト。 ●ウォークインクロゼットや家族で使える納戸など、豊富な収納をご用意。 ●窓を設けた明るいキッチンは、開放的な視界も嬉しい対面カウンタータイプ。 |
| タイプ | NW-65A1 |
|---|---|
| 間取り | 3LDK+WIC |
| 価格 | - |
| 専有面積 | 66.24m² |
| バルコニー面積 | 8.14m² |
| 所在階 | |
| その他面積 | |
| 向き | |
| 備考 | ●コーナーサッシュをリビング・ダイニングに設けた明るく開放的な角住戸プラン。 ●専用バルコニーを配した洋室(1)は、独立性の高いレイアウト。 ●収納力のあるウォークインクロゼットや下足入、リネン庫など随所に収納をご用意。 ●お料理をしながらご家族との会話も弾む対面カウンターキッチン。 |
| タイプ | NW-85A |
|---|---|
| 間取り | 3LDK+N+WIC+SIC+収納室 |
| 価格 | - |
| 専有面積 | 84.35m² |
| バルコニー面積 | 11.84m² |
| 所在階 | |
| その他面積 | |
| 向き | |
| 備考 | コーナーサッシュをリビング・ダイニングに設けた明るく開放的な角住戸プラン。 ●専用バルコニーを配した洋室(1)は、独立性の高いレイアウト。 ●納戸やウォークインクロゼット、シューズインクロゼットなど豊富な収納をご用意。 ●対面カウンター採用のキッチンや1620サイズの浴室など充実の水回り。 |
| タイプ | S-55D |
|---|---|
| 間取り | 2LDK+WIC |
| 価格 | - |
| 専有面積 | 57.29m² |
| バルコニー面積 | 3.53m² |
| 所在階 | |
| その他面積 | サービスバルコニー面積/2.34㎡ |
| 向き | |
| 備考 | 南面開口部に3居室を配した明るく開放感に溢れたプラン。 ●開放的なリビング・ダイニングは洋室(2)と一体で利用も可能。 ●洋室(1)に収納力豊富なウォークインクロゼットをご用意。 ●お料理をしながらご家族との会話も弾む対面カウンターキッチン。 |
| タイプ | S-65C |
|---|---|
| 間取り | 3LDK+WIC+SIC |
| 価格 | - |
| 専有面積 | 64.78m² |
| バルコニー面積 | 6.23m² |
| 所在階 | |
| その他面積 | |
| 向き | |
| 備考 | 南面開口部に3居室を配した明るく開放感に溢れたプラン。 ●洋室(2)(3)は引戸を採用し、ライフシーンに応じてフレキシブルな間取りが可能。 ●洋室(1)に収納力豊富なウォークインクロゼットをご用意。 ●キッチンは落ち着いてお料理に専念できるレイアウトを採用。 |
| タイプ | W-40A1 |
|---|---|
| 間取り | 1LDK |
| 価格 | - |
| 専有面積 | 37.69m² |
| バルコニー面積 | 7.41m² |
| 所在階 | |
| その他面積 | |
| 向き | |
| 備考 | バルコニーに面した開放的なリビング・ダイニングと洋室のあるプラン。 ●明るい洋室はリビング・ダイニングとの一体利用も可能。 ●廊下を極力短く配し、居室有効率を高めたレイアウト。 ●キッチンは開放感のあるカウンター付きを採用。 |
シティタワー大阪本町
※完成予想図やCG合成画像は、門塀・植栽・庭・外観等、実際とは多少異なる場合があります。
※掲載の写真や動画には、一部オプション(有償)が含まれる場合があります。また、家具・調度品等は販売価格に含まれておりません。
※価格は物件の代金総額を表示しており、消費税が課税される場合は税込み価格です。
※完成後1年以上を経過した未入居物件が掲載される場合があります。ご了承ください。
