パークタワー渋谷笹塚
情報更新日:2025/10/02
- 所在地
- 東京都渋谷区笹塚1丁目50―1地図で表示
- アクセス
-
京王線「笹塚」駅 徒歩4分 京王クラウン街出入口(通行時間6時~24時30分)より徒歩3分
小田急小田原線「代々木上原」駅 徒歩16分
小田急小田原線「下北沢」駅 徒歩22分
- 予定価格
- 一般販売住戸:7,000万円台~32,000万円台 ※1,000万円単位(内訳:建物価格および消費税、前払い地代)(予定・本販売期以降に対応)
- 間取り
- 一般販売住戸:1LDK~3LDK 間取りを見る
- 売主
- 三井不動産レジデンシャル株式会社【国土交通大臣(4)第7259号】
物件公式ホームページへ
間取り一覧
間取り表記の説明はこちら
間取り表記一覧
R |
ルーフバルコニー |
S |
サービスルーム(納戸) |
N |
納戸 |
W WIC |
ウォークインクロゼット(クローク) |
SIC |
シューズインクロゼット(クローク) |
TR |
トランクルーム |
DEN |
書斎(納戸) |
WTC |
ウォークスルークロゼット(クローク) |
MC |
マルチクロゼット(クローク) |
SC |
シューズクロゼット(クローク) |
タイプ |
45A |
間取り |
1LDK+TR+WIC |
価格 |
- |
専有面積 |
45.71m² |
バルコニー面積 |
11.10m² |
所在階 |
|
その他面積 |
※専有面積にはトランクルーム面積/0.66㎡含む |
向き |
|
備考 |
※住戸により仕様・形状が異なる場合がございます。※LDKの畳数にはキッチンの畳数が含まれています。※キッチン部分の畳数には、システムキッチン・冷蔵庫置場・カップボードスペースが含まれています。 |
タイプ |
58Cb |
間取り |
2LDK+TR |
価格 |
- |
専有面積 |
58.70m² |
バルコニー面積 |
13.32m² |
所在階 |
|
その他面積 |
※専有面積にはトランクルーム面積/0.66㎡含む |
向き |
|
備考 |
※住戸により仕様・形状が異なる場合がございます。※LDKの畳数にはキッチンの畳数が含まれています。※キッチン部分の畳数には、システムキッチン・冷蔵庫置場・カップボードスペースが含まれています。 |
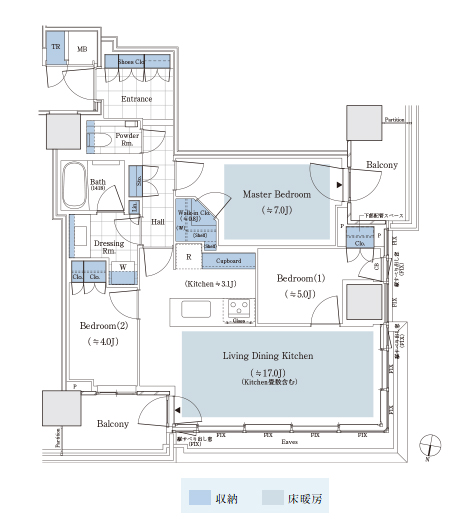
タイプ |
65B |
間取り |
3LDK+S+TR |
価格 |
- |
専有面積 |
65.35m² |
バルコニー面積 |
15.03m² |
所在階 |
|
その他面積 |
※専有面積にはトランクルーム面積/0.66㎡含む |
向き |
|
備考 |
※住戸により仕様・形状が異なる場合がございます。※LDKの畳数にはキッチンの畳数が含まれています。※キッチン部分の畳数には、システムキッチン・冷蔵庫置場・カップボードが含まれています。
※S:ストレージ(納戸) |
タイプ |
70A |
間取り |
3LDK+S+TR+WIC+SIC |
価格 |
- |
専有面積 |
70.20m² |
バルコニー面積 |
16.56m² |
所在階 |
|
その他面積 |
※専有面積にはトランクルーム面積/0.66㎡含む |
向き |
|
備考 |
※住戸により仕様・形状が異なる場合がございます。※LDKの畳数にはキッチンの畳数が含まれています。※キッチン部分の畳数には、システムキッチン・冷蔵庫置場・カップボードスペースが含まれています。 |
タイプ |
81A |
間取り |
3LDK+S+TR+WIC+SIC |
価格 |
- |
専有面積 |
81.74m² |
バルコニー面積 |
15.31m² |
所在階 |
|
その他面積 |
※専有面積にはトランクルーム面積/0.66㎡含む |
向き |
|
備考 |
※住戸により仕様・形状が異なる場合がございます。※LDKの畳数にはキッチンの畳数が含まれています。※キッチン部分の畳数には、システムキッチン・冷蔵庫置場・カップボードが含まれています。 |
タイプ |
P-107C |
間取り |
3LDK+S+TR+DEN+SIC+3WIC |
価格 |
- |
専有面積 |
107.73m² |
バルコニー面積 |
25.29m² |
所在階 |
|
その他面積 |
※専有面積にはトランクルーム面積/0.66㎡含む |
向き |
|
備考 |
※住戸により仕様・形状が異なる場合がございます。※LDKの畳数にはキッチンの畳数が含まれています。※キッチン部分の畳数には、システムキッチン・冷蔵庫置場・カップボードスペースが含まれています。 |
タイプ |
P-83C |
間取り |
3LDK+S+TR+WIC+SIC |
価格 |
- |
専有面積 |
83.99m² |
バルコニー面積 |
17.35m² |
所在階 |
|
その他面積 |
※専有面積にはトランクルーム面積/1.73㎡含む |
向き |
|
備考 |
※住戸により仕様・形状が異なる場合がございます。※LDKの畳数にはキッチンの畳数が含まれています。※キッチン部分の畳数には、システムキッチン・冷蔵庫置場・カップボードスペースが含まれています。 |
※完成予想図やCG合成画像は、門塀・植栽・庭・外観等、実際とは多少異なる場合があります。
※掲載の写真や動画には、一部オプション(有償)が含まれる場合があります。また、家具・調度品等は販売価格に含まれておりません。
※価格は物件の代金総額を表示しており、消費税が課税される場合は税込み価格です。
※完成後1年以上を経過した未入居物件が掲載される場合があります。ご了承ください。