プラウド泉中央フロント ( 第3期 )
情報更新日:2025/11/13

間取り一覧
5間取り / 5間取り中
間取り表記一覧
| R | ルーフバルコニー |
|---|---|
| S | サービスルーム(納戸) |
| N | 納戸 |
| W WIC |
ウォークインクロゼット(クローク) |
| SIC | シューズインクロゼット(クローク) |
| TR | トランクルーム |
| DEN | 書斎(納戸) |
| WTC | ウォークスルークロゼット(クローク) |
| MC | マルチクロゼット(クローク) |
| SC | シューズクロゼット(クローク) |
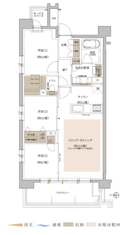
| タイプ | A |
|---|---|
| 間取り | 3LDK+WIC |
| 価格 | - |
| 専有面積 | 68.68m² |
| バルコニー面積 | 9.32m² |
| 所在階 | |
| その他面積 | |
| 向き | |
| 備考 | ■多彩な収納:奥行きのある押入収納をはじめ、住まいの随所に多彩な収納。 ■ウォールドア:開放すればリビングと洋室(2)を一体利用可能。 ■対面カウンターキッチン:リビングと一体感のある、対面カウンターキッチンを装備。 ■床暖房:足元から部屋全体を心地よく暖める床暖房を全戸リビング・ダイニングに導入。 |
| タイプ | B |
|---|---|
| 間取り | 2LDK+N+SIC+2WIC |
| 価格 | - |
| 専有面積 | 57.00m² |
| バルコニー面積 | 9.63m² |
| 所在階 | |
| その他面積 | |
| 向き | |
| 備考 | ■土間:靴を脱がずそのまま使える玄関横の多目的収納。洗面化粧室直結で使い勝手のよい動線。 ■ウォールドア:開放すればリビングと洋室(2)を一体化して広々とした続き間に。 ■2つのウォークインクローゼット:各洋室には衣類や小物をたっぷり収納できるウォークインクローゼットを標準装備。 ■床暖房:足元から部屋全体を心地よく暖める床暖房を全戸リビング・ダイニングに導入。 |
| タイプ | D |
|---|---|
| 間取り | 3LDK+WIC |
| 価格 | - |
| 専有面積 | 72.30m² |
| バルコニー面積 | 10.17m² |
| 所在階 | |
| その他面積 | |
| 向き | |
| 備考 | ■3面開口南西角住戸:2面開口のリビングと洋室(1)、開放的な3面開口角住戸。 ■ウォールドア:開放すればリビングと洋室(3)を一体利用可能。 ■窓付き対面キッチン:風通しが心地よい窓を備えた、対面カウンターキッチン。 ■多彩な収納:奥行きのある押入収納をはじめ、住まいの随所に多彩な収納。 |
| タイプ | E |
|---|---|
| 間取り | 2LDK+SIC+2WIC |
| 価格 | - |
| 専有面積 | 56.17m² |
| バルコニー面積 | 8.19m² |
| 所在階 | |
| その他面積 | |
| 向き | |
| 備考 | ■ウォールドア:開放すればリビングと洋室(2)を一体化して広々とした続き間に。 ■ゆとりの収納空間:各洋室には衣類や小物をたっぷり収納できるウォークインクローゼット、玄関にはシューズインクロークを標準装備。 ■対面カウンターキッチン:リビングと一体感のある、対面カウンターキッチンを装備。 ■床暖房:足元から部屋全体を心地よく暖める床暖房を全戸リビング・ダイニングに導入。 |
プラウド泉中央フロント ( 第3期 )
※完成予想図やCG合成画像は、門塀・植栽・庭・外観等、実際とは多少異なる場合があります。
※掲載の写真や動画には、一部オプション(有償)が含まれる場合があります。また、家具・調度品等は販売価格に含まれておりません。
※価格は物件の代金総額を表示しており、消費税が課税される場合は税込み価格です。
※完成後1年以上を経過した未入居物件が掲載される場合があります。ご了承ください。