パークコート青山高樹町 ザ タワー

情報更新日:2026/04/04
一般販売住戸:未定
所在地
東京都港区南青山6丁目255番、256番1 地図で表示
間取り
一般販売住戸:2LDK 間取りを見る
アクセス
東京メトロ銀座線「表参道」駅 徒歩8分 【B1出口(6:00-22:00)利用】/ 徒歩9分【B3・A5出口利用】
専有面積
1,312.65㎡

間取り一覧

3間取り / 3間取り中

間取り表記の説明はこちら

間取り表記一覧

R ルーフバルコニー
S サービスルーム(納戸)
N 納戸
W
WIC
ウォークインクロゼット(クローク)
SIC シューズインクロゼット(クローク)
TR トランクルーム
DEN 書斎(納戸)
WTC ウォークスルークロゼット(クローク)
MC マルチクロゼット(クローク)
SC シューズクロゼット(クローク)
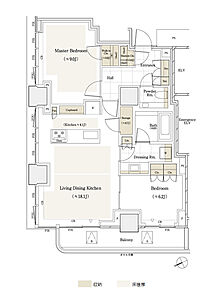
タイプ 61A
間取り 2LDK+SIC+2WIC
価格 -
専有面積 61.70
バルコニー面積 9.28
所在階
その他面積
向き
備考
タイプ 70B
間取り 2LDK+SIC+2WIC
価格 -
専有面積 70.43
バルコニー面積 13.32
所在階
その他面積
向き
備考
タイプ 80A【MENU PLAN1】
間取り 2LDK+S+WIC+SIC
価格 -
専有面積 80.00
バルコニー面積 8.96
所在階 14~18階
その他面積
向き
備考 ■駐車場優先権付
※駐車場抽選優先権は、ご入居前の駐車場利用者決定時の抽選優先権であり、将来に渡って保証されるものではございません。また、申込時に駐車場への申込みが無い場合、抽選優先権は失効いたします。詳しくは係員へお問合わせください。

パークコート青山高樹町 ザ タワー

※完成予想図やCG合成画像は、門塀・植栽・庭・外観等、実際とは多少異なる場合があります。
※掲載の写真や動画には、一部オプション(有償)が含まれる場合があります。また、家具・調度品等は販売価格に含まれておりません。
※価格は物件の代金総額を表示しており、消費税が課税される場合は税込み価格です。
※完成後1年以上を経過した未入居物件が掲載される場合があります。ご了承ください。

ページTOPへ