Brillia 夙川松園町
情報更新日:2026/04/04
未定
間取り一覧
13間取り / 13間取り中
間取り表記一覧
| R | ルーフバルコニー |
|---|---|
| S | サービスルーム(納戸) |
| N | 納戸 |
| W WIC |
ウォークインクロゼット(クローク) |
| SIC | シューズインクロゼット(クローク) |
| TR | トランクルーム |
| DEN | 書斎(納戸) |
| WTC | ウォークスルークロゼット(クローク) |
| MC | マルチクロゼット(クローク) |
| SC | シューズクロゼット(クローク) |
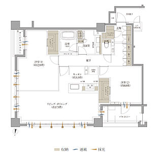
| タイプ | A |
|---|---|
| 間取り | 3LDK+SIC+2WIC+2N |
| 価格 | - |
| 専有面積 | 107.62 |
| バルコニー面積 | 12.93 |
| 所在階 | |
| その他面積 | 合計専有面積/107.62㎡(住戸専有面積107.05㎡・宅配BOX面積0.57㎡) サービスバルコニー面積/4.09㎡ |
| 向き | |
| 備考 | ■南東向きの角住戸がもたらす開放感と生活動線に寄り添う、上質な収納設計。 ■バルコニーに面したリビング・ダイニングは、採光・通風に配慮した明るく開放的な空間となっており、日常のくつろぎの時間を心地よく演出。 ■ウォークインクロゼットやシューズインクロゼット、キッチンパントリーを備え、収納性も充実。 ※カウンター下部は壁となります。 |
| タイプ | A【セレクトプラン1】 |
|---|---|
| 間取り | 2LDK+N+SIC+2WIC |
| 価格 | - |
| 専有面積 | 107.62 |
| バルコニー面積 | 12.93 |
| 所在階 | |
| その他面積 | 合計専有面積/107.62㎡(住戸専有面積107.05㎡・宅配BOX面積0.57㎡) サービスバルコニー面積/4.09㎡ |
| 向き | |
| 備考 | ■南東向きの角住戸がもたらす開放感と、広々としたリビング・ダイニングが叶えるゆとりある住まい ■LDKは約27畳超の広さを誇り、南面の開口部から採光・通風を取り込む明るく開放的な空間。 ■大型収納やパントリーも備えた機能的な設計。 ※カウンター下部は壁となります。 ※各種セレクトメニューのお申込みには期限がございます。詳細は係員にお問い合わせください。 |
| タイプ | A【セレクトプラン2】 |
|---|---|
| 間取り | 2LDK+WIC+SIC+2N |
| 価格 | - |
| 専有面積 | 107.62 |
| バルコニー面積 | 12.93 |
| 所在階 | |
| その他面積 | 合計専有面積/107.62㎡(住戸専有面積107.05㎡・宅配BOX面積0.57㎡) サービスバルコニー面積/4.09㎡ |
| 向き | |
| 備考 | ■南東向きの角住戸がもたらす開放感と、約16.6畳の広さを誇る主寝室のプライベート空間 ■バルコニーに面したリビング・ダイニングは、採光・通風に優れた明るい空間。 ■洋室(1)には、大型のウォークインクロゼットを備え寝室としての枠を超えた、日常のくつろぎをより上質に演出する設計。 ※カウンター下部は壁となります。 ※各種セレクトメニューのお申込みには期限がございます。詳細は係員にお問い合わせください。 |
| タイプ | B |
|---|---|
| 間取り | 2LDK+SIC+2WIC |
| 価格 | - |
| 専有面積 | 90.46 |
| バルコニー面積 | 14.49 |
| 所在階 | |
| その他面積 | 合計専有面積/90.46㎡(住戸専有面積90.01㎡・宅配BOX面積0.45㎡) |
| 向き | |
| 備考 | ■3室をバルコニー側に配した明るい住戸配置充実した収納を備えた南東向き2LDKプラン ■リビング・ダイニングと2つの洋室がバルコニーに面した採光・通風に優れた住空間。 ■各洋室のウォークインクロゼットに加え、廊下収納や洗面室リネン庫など充実の収納設計。 ※カウンター下部は壁となります。 |
| タイプ | B【セレクトプラン1】 |
|---|---|
| 間取り | 1LDK+SIC+WTC |
| 価格 | - |
| 専有面積 | 90.46 |
| バルコニー面積 | 14.49 |
| 所在階 | |
| その他面積 | 合計専有面積/90.46㎡(住戸専有面積90.01㎡・宅配BOX面積0.45㎡) |
| 向き | |
| 備考 | ■2室をバルコニー側に配した明るい住戸配置と、大型収納を備えた南東向きプラン ■約23.6畳の広大なリビング・ダイニングと洋室がバルコニーに面した、採光・通風に優れた住空間。 ■洗面室から洋室へ通り抜け可能なウォークスルークロゼットを採用し、効率的な家事・生活動線を実現。 ※カウンター下部は壁となります。 ※各種セレクトメニューのお申込みには期限がございます。詳細は係員にお問い合わせください。 |
| タイプ | D |
|---|---|
| 間取り | 2LDK+WIC |
| 価格 | - |
| 専有面積 | 81.40 |
| バルコニー面積 | 6.76 |
| 所在階 | |
| その他面積 | 合計専有面積/81.40㎡(住戸専有面積80.48㎡・宅配BOX面積0.92㎡) サービスバルコニー面積/0.96㎡ |
| 向き | |
| 備考 | ■約15畳のリビング・ダイニング×独立型キッチン動線と独立性を両立した2LDKプラン ■リビング・ダイニングは約15畳、独立型キッチンが生活空間との明確なゾーニングを実現。 ■約10畳の居室にはウォークインクロゼットを採用し、各スペースでスムーズな生活動線を提供。 |
| タイプ | D【セレクトプラン1】 |
|---|---|
| 間取り | 1LDK+N+WIC |
| 価格 | - |
| 専有面積 | 81.40 |
| バルコニー面積 | 6.76 |
| 所在階 | |
| その他面積 | 合計専有面積/81.40㎡(住戸専有面積80.48㎡・宅配BOX面積0.92㎡) サービスバルコニー面積/0.96㎡ |
| 向き | |
| 備考 | ■約19畳のゆとりあるリビング・ダイニングと、独立性の高いキッチンを備えたプラン ■LDKは、約23畳超のゆとりある住空間。 ■居室にはウォークインクロゼットを採用し、各スペースでスムーズな生活動線を提供。 ※各種セレクトメニューのお申込みには期限がございます。詳細は係員にお問い合わせください。 |
| タイプ | E |
|---|---|
| 間取り | 3LDK+SIC+2WIC |
| 価格 | - |
| 専有面積 | 100.00 |
| バルコニー面積 | 5.66 |
| 所在階 | |
| その他面積 | 合計専有面積/100.00㎡(住戸専有面積99.49㎡・宅配BOX面積0.51㎡) サービスバルコニー面積/3.81㎡ |
| 向き | |
| 備考 | ■角住戸ならではの開放感収納も充実の北東角3LDKプラン ■リビング・ダイニングを一体に感じられる対面キッチンを採用。 ■二方向に広がる開口部と、スムーズな生活動線が快適な暮らしを提供。 ■ウォークインクロゼットや、シューズインクロゼット、豊富な収納スペースを完備。 ※カウンター下部は壁となります。 |
| タイプ | E【セレクトプラン1】 |
|---|---|
| 間取り | 2LDK+SIC+2WIC |
| 価格 | - |
| 専有面積 | 100.00 |
| バルコニー面積 | 5.66 |
| 所在階 | |
| その他面積 | 合計専有面積/100.00㎡(住戸専有面積99.49㎡・宅配BOX面積0.51㎡) サービスバルコニー面積/3.81㎡ |
| 向き | |
| 備考 | ■角住戸ならではの開放感広々としたリビングが叶えるゆとりある住まい ■リビング・ダイニングを一体に感じられる対面キッチンを採用。 ■約22.8畳の広々としたリビング・ダイニングは3面の開口部から採光・通風を取り込む明るく開放的な空間。 ※カウンター下部は壁となります。 ※各種セレクトメニューのお申込みには期限がございます。詳細は係員にお問い合わせください。 |
| タイプ | E【セレクトプラン2】 |
|---|---|
| 間取り | 2LDK+SIC+2WIC |
| 価格 | - |
| 専有面積 | 100.00 |
| バルコニー面積 | 5.66 |
| 所在階 | |
| その他面積 | 合計専有面積/100.00㎡(住戸専有面積99.49㎡・宅配BOX面積0.51㎡) サービスバルコニー面積/3.81㎡ |
| 向き | |
| 備考 | ■角住戸ならではの開放感収納も充実の北東角2LDKプラン ■リビング・ダイニングを一体に感じられる対面キッチンを採用。 ■各居室にはウォークインクロゼットを採用し、各スペースでスムーズな生活動線を提供。 ※カウンター下部は壁となります。 ※各種セレクトメニューのお申込みには期限がございます。詳細は係員にお問い合わせください。 |
| タイプ | Hr |
|---|---|
| 間取り | 3LDK+N+SIC+3WIC |
| 価格 | - |
| 専有面積 | 126.41 |
| バルコニー面積 | 6.76 |
| 所在階 | |
| その他面積 | 合計専有面積/126.41㎡(住戸専有面積125.54㎡・宅配BOX面積0.87㎡) サービスバルコニー面積/0.96㎡、ルーフバルコニー面積/45.15㎡ |
| 向き | |
| 備考 | ■最上階、角住戸ならではの広大なルーフバルコニーを備え、室内外が心地よくつながる住空間。 ■約21.5畳のリビング・ダイニングは二面採光を確保し、明るくゆとりあるくつろぎを演出。 ■全居室ウォークインクロゼットを完備、住戸内には2つのトイレに加え、洗面台を2か所に設置するなど、快適性と利便性を高める設備を随所に採用。 ※カウンター下部は壁となります。 |
| タイプ | Hr【セレクトプラン1】 |
|---|---|
| 間取り | 2LDK+SIC+2WIC+2N |
| 価格 | - |
| 専有面積 | 126.41 |
| バルコニー面積 | 6.76 |
| 所在階 | |
| その他面積 | 合計専有面積/126.41㎡(住戸専有面積125.54㎡・宅配BOX面積0.87㎡) サービスバルコニー面積/0.96㎡、ルーフバルコニー面積/45.15㎡ |
| 向き | |
| 備考 | ■約30.5畳の広大なリビング・ダイニングは二面採光を確保し、明るくゆとりある空間を演出。 ■全居室ウォークインクロゼットを完備、住戸内には2つのトイレに加え、洗面台を2か所に設置するなど、快適性と利便性を高める設備を随所に採用。 ※カウンター下部は壁となります。 ※各種セレクトメニューのお申込みには期限がございます。詳細は係員にお問い合わせください。 |
| タイプ | Hr【セレクトプラン2】 |
|---|---|
| 間取り | 2LDK+N+SIC+3WIC |
| 価格 | - |
| 専有面積 | 126.41 |
| バルコニー面積 | 6.76 |
| 所在階 | |
| その他面積 | 合計専有面積/126.41㎡(住戸専有面積125.54㎡・宅配BOX面積0.87㎡) サービスバルコニー面積/0.96㎡、ルーフバルコニー面積/45.15㎡ |
| 向き | |
| 備考 | ■最上階、角住戸ならではの広大なルーフバルコニーを備え、室内外が心地よくつながる住空間 ■約21.5畳のリビング・ダイニングは二面採光を確保し、明るくゆとりあるくつろぎを演出。 ■洋室(1)にもバルコニーを設け、採光・通風を享受する明るく開放的な空間設計。 ※カウンター下部は壁となります。 ※各種セレクトメニューのお申込みには期限がございます。詳細は係員にお問い合わせください。 |
Brillia 夙川松園町
※完成予想図やCG合成画像は、門塀・植栽・庭・外観等、実際とは多少異なる場合があります。
※掲載の写真や動画には、一部オプション(有償)が含まれる場合があります。また、家具・調度品等は販売価格に含まれておりません。
※価格は物件の代金総額を表示しており、消費税が課税される場合は税込み価格です。
※完成後1年以上を経過した未入居物件が掲載される場合があります。ご了承ください。