Brillia 神戸旧居留地
情報更新日:2026/04/04
4,760万円 ※1万円単位
間取り一覧
17間取り / 17間取り中
間取り表記一覧
| R | ルーフバルコニー |
|---|---|
| S | サービスルーム(納戸) |
| N | 納戸 |
| W WIC |
ウォークインクロゼット(クローク) |
| SIC | シューズインクロゼット(クローク) |
| TR | トランクルーム |
| DEN | 書斎(納戸) |
| WTC | ウォークスルークロゼット(クローク) |
| MC | マルチクロゼット(クローク) |
| SC | シューズクロゼット(クローク) |
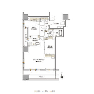
| タイプ | A |
|---|---|
| 間取り | 1LDK+SIC |
| 価格 | - |
| 専有面積 | 38.24 |
| バルコニー面積 | 12.24 |
| 所在階 | |
| その他面積 | 宅配BOX面積/0.50㎡ |
| 向き | |
| 備考 | ■廊下面積を少なくし、空間を有効に活かすことで、暮らしのゆとりを創出。 ■豊富な靴類もすっきり収納できるシューズインクロゼットをご用意。 ■キッチンには、ダイニングテーブルとしても利用のできる便利な対面カウンター収納を設置。 ■洋室から洗面室へ直接入れる、効率のよい生活動線を確保。 |
| タイプ | B |
|---|---|
| 間取り | 3LDK |
| 価格 | - |
| 専有面積 | 78.54 |
| バルコニー面積 | 14.20 |
| 所在階 | |
| その他面積 | 宅配BOX面積/0.70㎡、サービスバルコニー面積/4.29㎡ |
| 向き | |
| 備考 | ■南面と西面に開口部を設けた3LDK・角住戸。 ■リビングダイニングが2面開口のほか、キッチン横にも開口を設けた、通風・採光に優れたプラン。 ■玄関からリビングダイニングへの動線をクランクさせ、プライバシー性にも配慮。 |
| タイプ | B【セレクトプラン1】 |
|---|---|
| 間取り | 2LDK |
| 価格 | - |
| 専有面積 | 78.54 |
| バルコニー面積 | 14.20 |
| 所在階 | |
| その他面積 | 宅配BOX面積/0.70㎡、サービスバルコニー面積/4.29㎡ |
| 向き | |
| 備考 | ■約20.3畳の広々としたリビング・ダイニングを確保した2LDK角住戸。 ■下足入れに加え、全居室に収納を設けた収納豊富なプラン。 ■角住戸の特徴を活かした2面通風採光の明るく広々としたリビング・ダイニングを創出。 ※各種セレクトメニューのお申込みには期限がございます。詳細は係員にお問い合わせください。 |
| タイプ | B【セレクトプラン2】 |
|---|---|
| 間取り | 2LDK+N+WIC |
| 価格 | - |
| 専有面積 | 78.54 |
| バルコニー面積 | 14.20 |
| 所在階 | |
| その他面積 | 宅配BOX面積/0.70㎡、サービスバルコニー面積/4.29㎡ |
| 向き | |
| 備考 | ■全ての居室空間に窓を設けた明るく開放感あふれる角住戸プラン ■ウォークインクロゼットや下足入れに加えて約2.3帖の納戸を設けるなど充実した収納を確保。 ■角住戸ならではの開口部が明るく通気性の良い空間を演出。 ※各種セレクトメニューのお申込みには期限がございます。詳細は係員にお問い合わせください。 |
| タイプ | C |
|---|---|
| 間取り | 2LDK+WIC |
| 価格 | - |
| 専有面積 | 58.37 |
| バルコニー面積 | 11.90 |
| 所在階 | |
| その他面積 | 宅配BOX面積/0.80㎡ |
| 向き | |
| 備考 | ■空間効率・機能性を重視した2LDKプラン。 ■作業効率に優れたL型の対面式カウンターキッチン。 ■洋室(1)はバルコニーサイドに配置し、ウォークインクロゼットを完備。 |
| タイプ | D |
|---|---|
| 間取り | 3LDK+WIC+SIC |
| 価格 | - |
| 専有面積 | 76.11 |
| バルコニー面積 | 12.67 |
| 所在階 | |
| その他面積 | 宅配BOX面積/0.70㎡、サービスバルコニー面積/7.1㎡ |
| 向き | |
| 備考 | ■陽光の明るさに満ち、開放感あふれる住まい。 ■南面と東面に開口部を設けた、開放感のある角住戸プラン。 ■2面開口のリビング・ダイニングは、対面カウンター収納と一体となって、広々とした空間を創出。 ■ウォークインクロゼットや、シューズインクロゼット、物入れなどを設け、豊富な収納を実現。 |
| タイプ | F |
|---|---|
| 間取り | 1LDK |
| 価格 | - |
| 専有面積 | - |
| バルコニー面積 | 6.50 |
| 所在階 | |
| その他面積 | 宅配BOX面積/0.80㎡ |
| 向き | |
| 備考 | ■やわらかな陽光が洋室に広がる、日当たりのよい南向きの1LDK住戸。 ■廊下面積を少なくし、空間を有効に活かすことで、暮らしのゆとりを創出。 ■キッチンには、ダイニングテーブルとしても利用のできる便利な対面カウンター収納を設置。 |
| タイプ | G |
|---|---|
| 間取り | 3LDK+WIC+SIC |
| 価格 | - |
| 専有面積 | 82.54 |
| バルコニー面積 | 42.27 |
| 所在階 | |
| その他面積 | 宅配BOX面積/1.22㎡ |
| 向き | |
| 備考 | ■2面にわたってバルコニーが広がる、開放的で明るい3LDK・角住戸。 ■南面と東面をバルコニーが取り巻き、開口部も広く設けた、開放感のある角住戸プラン。 ■2面開口のリビング・ダイニングは、対面カウンター収納と一体となって、広々とした空間を創出。 ■ウォークインクロゼットや、シューズインクロゼット、物入れなどを設け、豊富な収納を実現。 |
| タイプ | H |
|---|---|
| 間取り | 1LDK |
| 価格 | - |
| 専有面積 | 57.18 |
| バルコニー面積 | 15.40 |
| 所在階 | |
| その他面積 | 宅配BOX面積/0.80㎡ |
| 向き | |
| 備考 | ■生活動線に工夫を凝らし、スマートに暮らせるよう配慮。 ■洗面室・キッチンの水回り動線がスムーズな家事効率に優れたプラン。 ■リビング・ダイニングは2面に開口部を設け、洋室はバルコニーサイドに配置することで、光と風が爽やかな居室環境を実現。 |
| タイプ | H【セレクトプラン1】 |
|---|---|
| 間取り | 1R |
| 価格 | - |
| 専有面積 | 57.18 |
| バルコニー面積 | 15.40 |
| 所在階 | |
| その他面積 | 宅配BOX面積/0.80㎡ |
| 向き | |
| 備考 | ■広々としたリビング・ダイニングと生活導線に優れたスマートプラン。 ■収納力豊富な2つのクロゼットを設けることですっきりとした18.5畳の広々としたリビング・ダイニングを実現。 ■2面に開口部を設け、光と風が爽やかな居室環境を実現。 ※各種セレクトメニューのお申込みには期限がございます。詳細は係員にお問い合わせください。 |
| タイプ | Ir |
|---|---|
| 間取り | 3LDK+WIC+N+SIC |
| 価格 | - |
| 専有面積 | 84.36 |
| バルコニー面積 | 9.26 |
| 所在階 | |
| その他面積 | 宅配BOX面積/0.50㎡、ルーフバルコニー面積/20.26㎡ |
| 向き | |
| 備考 | ■約20m2のルーフバルコニー付き、開放感あふれるプレミアムプラン。 ■3面開口・2面バルコニー(うち1面はルーフバルコニー)の3LDK角住戸。 ■広々としたルーフバルコニーは手すり越しに緑を望む、心癒すプライベート空間。 ■ウォークインクロゼットやシューズインクロゼット、物入れを設置し、豊富な収納を確保。 |
| タイプ | J |
|---|---|
| 間取り | 2LDK+WIC |
| 価格 | - |
| 専有面積 | 69.65 |
| バルコニー面積 | 18.90 |
| 所在階 | |
| その他面積 | 宅配BOX面積/1.90㎡ |
| 向き | |
| 備考 | ■全居室南向きに面したプレミアムフロア・2LDK住戸。 ■約9.9mの間口を実現したワイドスパン設計の住戸プラン。すべての居室を陽光の明るさに恵まれるバルコニーサイドに配置。 |
| タイプ | K |
|---|---|
| 間取り | 3LDK+WIC+SIC |
| 価格 | - |
| 専有面積 | 104.98 |
| バルコニー面積 | 20.51 |
| 所在階 | |
| その他面積 | 宅配BOX面積/1.10㎡ |
| 向き | |
| 備考 | ■住まうことで得られる、所有することの喜びと満足感を享受。 ■3面開口・2面バルコニーの開放感と爽快感のあふれる角住戸プラン。 ■明るさと開放感にあふれる、ワイドサッシを採用した2面開口のリビング・ダイニング。 ■ウォークインクロゼットやシューズインクロゼット、キッチンのパントリーを標準装備することで収納性を充実。 |
| タイプ | Kr |
|---|---|
| 間取り | 3LDK+WIC+SIC |
| 価格 | - |
| 専有面積 | 104.98 |
| バルコニー面積 | 6.97 |
| 所在階 | |
| その他面積 | 宅配BOX面積/1.10㎡、ルーフバルコニー面積/22.97㎡ |
| 向き | |
| 備考 | ■広々としたルーフバルコニー付き、光と風に満ちた3LDK角住戸。 ■3面開口・2面バルコニー(うち1面はルーフバルコニー)のプレミアムプラン。 ■約3.5mの奥行きを持つルーフバルコニーは、手すり越しの緑が美しいプライベートエリア。 ■リビング・ダイニングは2面開口・ワイドサッシで光あふれるくつろぎの空間に。 ■ウォークインクロゼットやシューズインクロゼット、キッチンパントリーを標準装備し、収納性も充実。 |
| タイプ | K【セレクトプラン1】 |
|---|---|
| 間取り | 2LDK+WIC+SIC |
| 価格 | - |
| 専有面積 | 104.98 |
| バルコニー面積 | 20.51 |
| 所在階 | |
| その他面積 | 宅配BOX面積/1.10㎡ |
| 向き | |
| 備考 | ■約20.2畳のリビングに、アイランドキッチンを採用した広々スタイリッシュプラン ■3面開口・2面バルコニーの開放感と爽快感のあふれる角住戸プラン。明るさと開放感にあふれる、ワイドサッシを採用した ■2面開口のリビング・ダイニングに加え、生活導線を考えた各所に収納を配置し機能性を追求。 ※各種セレクトメニューのお申込みには期限がございます。詳細は係員にお問い合わせください。 |
| タイプ | K【セレクトプラン2】 |
|---|---|
| 間取り | 2LDK+WIC+SIC |
| 価格 | - |
| 専有面積 | 104.98 |
| バルコニー面積 | 20.51 |
| 所在階 | |
| その他面積 | 宅配BOX面積/1.10㎡ |
| 向き | |
| 備考 | ■約16.6畳の洋室(1)と約15.1畳のリビング・ダイニング。 広々とした居室空間が開放感あふれる空間を演出。 ■2面バルコニーと開口部が、約16.6畳の洋室(1)と約15.1畳のリビング・ダイニングをさらに開放感あふれる空間に。 ■ウォークインクロゼットやシューズインクロゼットなど大容量の収納も採用。 ※各種セレクトメニューのお申込みには期限がございます。詳細は係員にお問い合わせください。 |
Brillia 神戸旧居留地
※完成予想図やCG合成画像は、門塀・植栽・庭・外観等、実際とは多少異なる場合があります。
※掲載の写真や動画には、一部オプション(有償)が含まれる場合があります。また、家具・調度品等は販売価格に含まれておりません。
※価格は物件の代金総額を表示しており、消費税が課税される場合は税込み価格です。
※完成後1年以上を経過した未入居物件が掲載される場合があります。ご了承ください。