プラウド田無サウスアベニュー ( 第3期 )

情報更新日:2025/12/25

プラウド田無サウスアベニュー ( 第3期 )
所在地
東京都西東京市保谷町四丁目1368-74(地番)地図で表示
アクセス
西武新宿線「田無」駅 徒歩11分
JR中央線「三鷹」駅 関東バス「三鷹駅」行き30分、「田無町二丁目」4分
予定価格
6,200万円台(3LDK 71.30m2)~8,900万円台(3LDK 88.09m2)
間取り
3LDK 間取りを見る
売主
野村不動産株式会社(国土交通大臣(14)第1370号)

間取り一覧

6間取り / 6間取り中

間取り表記の説明はこちら

間取り表記一覧

R ルーフバルコニー
S サービスルーム(納戸)
N 納戸
W
WIC
ウォークインクロゼット(クローク)
SIC シューズインクロゼット(クローク)
TR トランクルーム
DEN 書斎(納戸)
WTC ウォークスルークロゼット(クローク)
MC マルチクロゼット(クローク)
SC シューズクロゼット(クローク)
タイプ A
間取り 3LDK+WIC+SIC
価格 -
専有面積 73.94
バルコニー面積 10.96
所在階
その他面積
向き
備考 ■コーナーサッシで開放的なリビング・ダイニング。一部窓の開閉が可能で通風も確保。
■オープンタイプの明るいキッチン。扉付きでバルコニーへの行き来もスムーズに。
タイプ E
間取り 3LDK+N+FIC
価格 -
専有面積 73.11
バルコニー面積 12.40
所在階
その他面積
向き
備考 ■キッチンのそばに洗面化粧室や掃除道具を仕舞える納戸を配置。料理、掃除、洗濯などスムーズにする家事動線を確保。
■オープンタイプの明るいキッチン。家族とコミュニケーションしながら料理ができます。
FIC=フィットインクローゼット
タイプ K
間取り 3LDK+N+FIC
価格 -
専有面積 71.30
バルコニー面積 12.10
所在階
その他面積
向き
備考 予定販売価格:7,300万円台(100万円単位)
■キッチンのそばに洗面化粧室や掃除道具を仕舞える納戸を配置。料理、掃除、洗濯などスムーズにする家事動線を確保。
■オープンタイプの明るいキッチン。家族とコミュニケーションしながら料理ができます。
タイプ M
間取り 3LDK+N+3WIC
価格 -
専有面積 80.62
バルコニー面積 12.30
所在階
その他面積
向き
備考 ■窓を豊富に設えたリビング・ダイニングや窓付きのキッチンなど、心地よい採光と風通しを確保。
■各居室が、整形のスッキリとした空間。家具等の配置もしやすい設計。
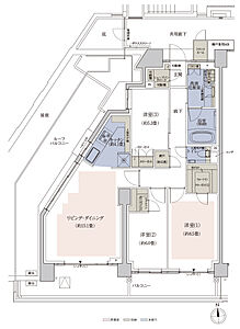
タイプ Nr
間取り 3LDK+N+SIC+2WIC+TR
価格 -
専有面積 92.60
バルコニー面積 19.40
所在階
その他面積 専有トランクルーム面積/0.94㎡、ルーフバルコニー面積/29.98㎡
向き
備考 ■ルーフバルコニーに面した2面採光のリビング・ダイニング。キッチンシンク前にも窓が付いた開放感あふれる設計。
■トランクルーム、シューズインクローク、納戸、2つのウォークインクローゼットなど収納が豊富。
タイプ Or
間取り 3LDK+N+TR+SIC+2WIC
価格 -
専有面積 87.57
バルコニー面積 6.77
所在階
その他面積 専有トランクルーム面積/0.52㎡、ルーフバルコニー面積/20.82㎡
向き
備考 予定販売価格:8,900万円台(100万円単位)
■2面採光のリビング・ダイニングやルーフバルコニーに面した洋室(1)(2)など開放感あふれるプランニング。
■トランクルーム、シューズインクローク、納戸、2つのウォークインクローゼットなど収納が豊富。

プラウド田無サウスアベニュー ( 第3期 )

※完成予想図やCG合成画像は、門塀・植栽・庭・外観等、実際とは多少異なる場合があります。
※掲載の写真や動画には、一部オプション(有償)が含まれる場合があります。また、家具・調度品等は販売価格に含まれておりません。
※価格は物件の代金総額を表示しており、消費税が課税される場合は税込み価格です。
※完成後1年以上を経過した未入居物件が掲載される場合があります。ご了承ください。

ページTOPへ